Мытью окон на крыше, с земли, с лифта, с помощью промышленных альпинистов -
№ 1014, размещено 21-06-2022, 17:05 1 492 0- Имя представителя:
- Должность представителя:
- Телефон: +37253535351
- Адрес:
Адрес: Эстония, Таллинн
Посмотреть карту ↓
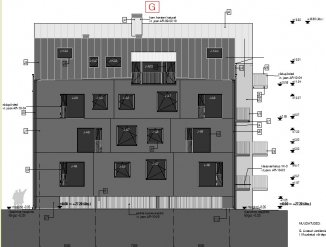
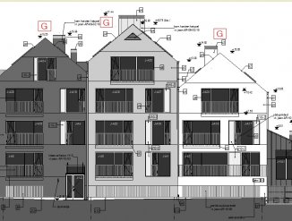
Мы ищем компанию, которая предложила бы услуги по мытью окон на крыше, с земли, с лифта, а также с помощью промышленных альпинистов. Мы хотели бы предложить Таллинн, Talli tn 5 квартирное товарищество. На крыше есть салазки для крепления страховочного снаряжения альпинистов на крыше для мытья окон более высокой (срезной) крыши. Стеклянные поверхности нижней части здания можно мыть подъемником на улице и лестницей во дворе.
Мы хотели бы предложить мытье всех окон, кроме окна, выходящие на балконы/лоджии и т.н. окна с французскими балконами.
Приложение поставляется с представлениями об опыте. При необходимости вы также можете встретиться на месте и оценить ситуацию на месте.
Мы хотели бы предложить мытье всех окон, кроме окна, выходящие на балконы/лоджии и т.н. окна с французскими балконами.
Приложение поставляется с представлениями об опыте. При необходимости вы также можете встретиться на месте и оценить ситуацию на месте.
Найти исполнителя , Мытью окон на крыше, с земли, с лифта, с помощью промышленных альпинистов в Эстонии, Таллинн,
Расскажите друзьям:
- 1 492
- 0
- 21-06-2022, 17:05
Отзывы (0)
Написать комментарий
Похожие объявления
«Шокирующие случаи мошенничества: нельзя отправлять деньги на пересылку товаров и животных!» Администрация сайта.
Вы можете пообщаться по видео с продавцами товаров и услуг, они покажут товар онлайн и ответят на ваши вопросы. Вам не понадобится включать камеру.
Позвонить по видео







